Rolling Gantry Crane

Products Description
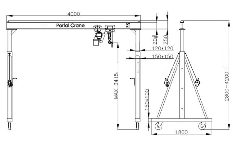
Portable 1 2 3 tonne rolling gantry crane is a new type of small lifting gantry developed according to the daily production needs of medium and small factories, facades, outdoor and other transportation equipment, warehouse import and export, lifting and maintenance of heavy equipment and material transportation. It is suitable for manufacturing molds, auto repair factories, mines, construction sites and occasions where lifting is required. The biggest advantage of this mobile gantry is its all-round mobility, quick disassembly and installation, small footprint, and it can be transferred to another site for installation and use with a miniature car. The width and height can be adjusted step by step, the steel structure is designed reasonably, and it can bear the weight from 100 to 5000KG. Especially suitable for installation, handling and debugging of workshop equipment.
Technical Sheet

|
Item No. |
Rated Load (ton) |
Total Height (mm) |
Max. Lifting Height (mm) |
Outside Span (mm) |
Inner Span (mm ) |
Height (mm) |
|
LT-1 |
0.5 |
3000 |
2420 |
2000 |
1880 |
460 |
|
0.5 |
3000 |
2420 |
3000 |
2880 |
460 |
|
|
0.5 |
4000 |
3420 |
3000 |
2880 |
460 |
|
|
0.5 |
4000 |
3420 |
4000 |
3880 |
460 |
|
|
1 |
3000 |
2470 |
2000 |
1880 |
410 |
|
|
1 |
3000 |
2470 |
3000 |
2880 |
410 |
|
|
1 |
4000 |
3470 |
3000 |
2880 |
410 |
|
|
1 |
4000 |
3470 |
4000 |
3880 |
410 |
|
|
2 |
3000 |
2215 |
2000 |
1800 |
535 |
|
|
2 |
3000 |
2215 |
3000 |
2800 |
535 |
|
|
2 |
4000 |
3215 |
3000 |
2800 |
535 |
|
|
2 |
4000 |
3215 |
4000 |
3800 |
535 |
|
|
3 |
3000 |
2122 |
2000 |
1800 |
685 |
|
|
3 |
3000 |
2122 |
3000 |
2800 |
685 |
|
|
3 |
4000 |
3122 |
3000 |
2800 |
685 |
|
|
3 |
4000 |
3122 |
4000 |
3800 |
685 |
Detailed Images



Application Scenarios
Portable 1 2 3 tonne rolling gantry crane is widely used for the workshop, warehouse and outdoor etc. It is used for loading and unloading between fixed span and it can handle many kinds of materials, such as steel structure, precast concrete, glass, plastic, etc.

Company Information


Hot Tags: rolling gantry crane, China rolling gantry crane manufacturers, suppliers, factory
You Might Also Like
Send Inquiry












